www.bessermacher.info -> www.bessermacher.info/projekt-dgz/


Zur `Bessermacher´- GESAMT-Übersicht


Übersicht   -   Hintergrund   -   Konzept & Komponenten   -   Rauchmelder & Innenüberwachung, etc.   -   Außenüberwachung   -   Haustür   -   Heizung    -   Signalweiterleitung & Signalgeber   -   Smartphone-Einrichtung für Signalweiterleitung   -   Beispiel

Die Story (Beitrag in der Deutschen Gehörlosenzeitung 2016) und weitere Resonanzen


P r o j e k t   D G Z

4 .   B e i s p i e l

Die Erprobung des Konzepts erfolgte beim Neubau eines nachhaltigen Einfamilienhauses,

einer gehörlosen Familie mit Kindern in Süddeutschland.

 

Eckdaten zum Neubau

 

 

 

 

 

 

 

 

 

 

 

 

 

 

 

 

"Nachhaltig bauen, wohnen und leben ist KEINE Frage des Budgets, sondern eine Frage der Prioritäten und des Konzepts!"

  • Effizienhaus 70

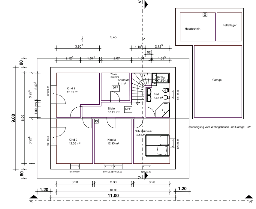
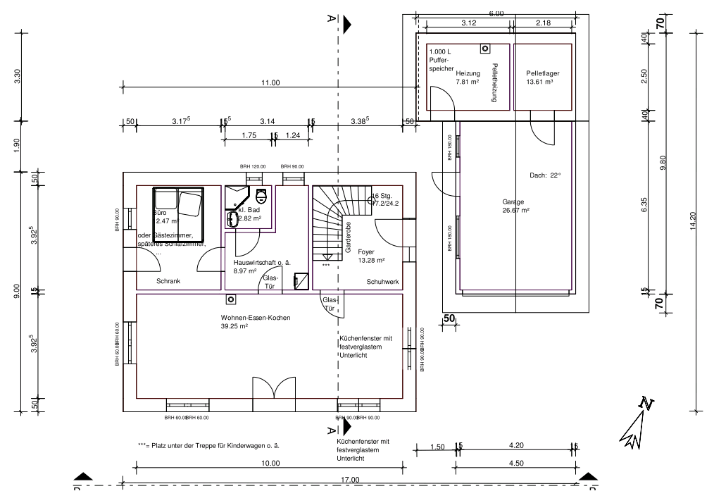
  • Grundriss:  9m x 11m

  • Wohnfläche:  ca. 160 qm

  • Ohne Keller

  • Große Garage mit angebundenem Haustechnikraum

  • Seekiefer (www.woodline.de) Massivholz- und Linoleumböden

  • Innenwände mit Kalkputz und Silikatfarbe

  • Heizung:  ÖKOFEN Brennwert-Pelletkessel mit 1.000 Liter Pufferspeicher

  • Solaranlage:  vorgesehen, Leitungen, etc. sind vorverlegt

  • Photovoltaik:  vorgesehen, Leitungen, etc. sind vorverlegt

  • Inklusiv DEKRA-Bauüberwachung

  • Schlüsselfertige Baukosten (bezugsbereit MIT Nebengebäude und Außenanlagen): rund 350.000€


Herzlichen Dank allen beteiligten Handwerker und besonders der regionalen Schlüsselfertigbaufirma.

 

 

Erdgeschoss

 

 

Obergeschoss

 

 

Entwurf ...

 

... & Wirklichkeit 1

 

 

Entwurf ...

... & Wirklichkeit

 

 

 

 


Übersicht   -   Hintergrund   -   Konzept & Komponenten   -   Rauchmelder & Innenüberwachung, etc.   -   Außenüberwachung   -   Haustür   -   Heizung    -   Signalweiterleitung & Signalgeber   -   Smartphone-Einrichtung für Signalweiterleitung   -   Beispiel

Die Story (Beitrag in der Deutschen Gehörlosenzeitung 2016) und weitere Resonanzen


Zur `Bessermacher´- GESAMT-Übersicht

 

Link zur Deutschen Gehörlosenzeitung DGZ

www.bessermacher.info -> www.bessermacher.info/projekt-dgz/

Idee, Konzept, Recherche, Makro-Entwicklung & Umsetzung:  martin@bessermacher.info

Kontakt & Impressum

 

 

 

Lese-Tipp - 100 % KOSTENLOS (weil ehrenamtliches Projekt):

!Aha! - Das etwas andere Lifestyle-Magazin

152 Seiten nachhaltige Information & Inspiration zu allen Lebensbereichen und für die ganze Familie

Online-Ansicht und Download als PDF-Datei unter www.aha-magazine.com